+7 499 755-83-70, +7 495 620-58-22
.png)

Технические характеристики
| Параметр | Значение |
|---|---|
| Номинальное рабочее напряжение, кВ | 20 |
| Максимальное рабочее напряжение, кВ | 24 |
| Испытательное одноминутное напряжение промышленной частоты, кВ | 65 |
| Масса, кг | 17,9 |
| Окружающая среда | воздух, водород под давлением до 4 атм |
| Температура окружающей среды, °С | 5-100 |
| Влажность воздуха, водорода, % | до 90 |
| Высота над уровнем моря, м, не более | 2000 |
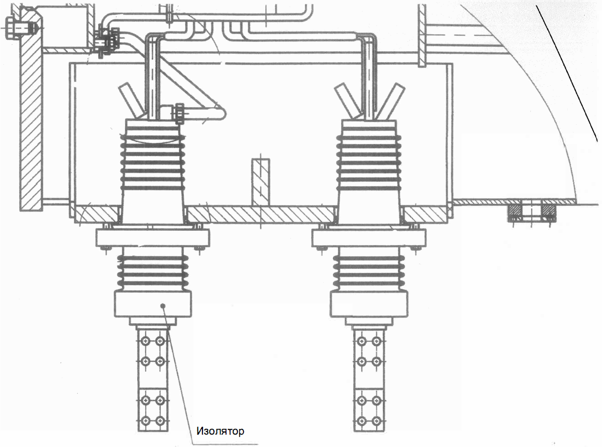
Проходной изолятор ИП-1219 предназначен для изолирования концевых выводов обмоток турбогенераторов от металлических конструкций корпуса статора при соединении их с нулевыми и линейными шинопроводами. Установка изолятора в коробке выводов изображена на рисунке:
